/
€1,100
1
Camere
1.0
Băi
42
Sună Agentul

Agentul Tău

Mustață Luminița
Mustață Luminița
luminita.m@mail.ru
Agent Imobiliar
37379855899

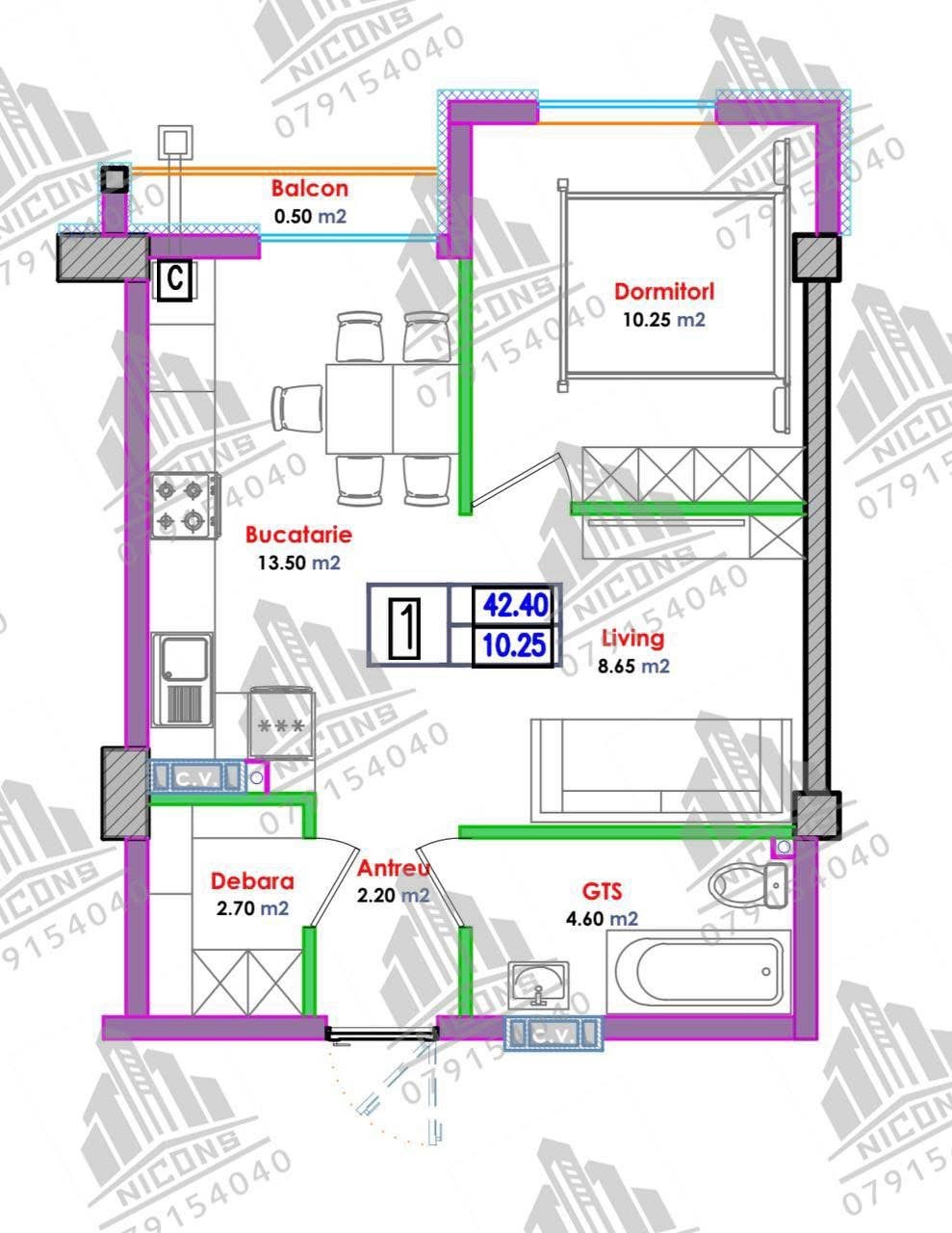
🏘 1 cameră - 42,4 m2

Durlești

Nou apartment

Descriere

Se vinde 💥Apartament 1 cameră de vînzare. 👷 DIRECT DE LA DEZVOLTATOR. 🔎 La noi găsești apartamentul perfect la prețul corect. 🏘 1 cameră - 38 m2 . 🏘 1 cameră - 42,4 m2 . 🏘 1 cameră - 42,9 m2 . 🌐 mun. Chișinău Durlești str. Cartusa 99/3 ☎ Detalii - 079855899

Specificații Proprietate

Tip Proprietate apartment
An Construcție 2025
Suprafața Terenului 42 m²
Parcare 1 locuri
parking
security
laundry

Broșură Completă PDF

Descarcă broșura completă a proprietății cu toate detaliile, specificațiile și fotografiile. Document profesional formatat cu toate informațiile necesare.

📄

Nu sunt disponibile planuri sau documente pentru această proprietate.

Lăsați o Recenzie

Nu există încă recenzii pentru această proprietate.

Fiți primul care își împărtășește experiența!

Locația

mun. Chișinău Durlești str. Cartusa 99/3, Chișinău, Moldova 2001

Programează o Vizită

Cod Confirmare:

Data & Ora: